
Фильтр ФГГ-200
цена от
469 200 руб.
- Исполнение – горизонтальное
- Номинальный диаметр DN – 250 мм
- Номинальное давление PN – до 10,0 МПа
- Тонкость фильтрации – 4, 8, 12, 16 или 25 мм
- Максимальная производительность – 300 м³/ч
- Материал корпуса – 09Г2С / 12Х18Н10Т / другая сталь
- Блочное исполнение – опционально
- Теплоизоляция – опционально
- Комплектация КИП, ЗРА – опционально
- Резервные фильтрующие элементы – опционально
Фильтр для нефтепровода ФГГ-250 с DN 250 и пропускной способностью 300 м³/ч предназначен для участков, где требуется баланс между производительностью и компактностью. Модель используется для очистки авиационного керосина, индустриальных масел и товарной нефти на НПС, а также в системах подготовки топлива для ТЭЦ.
Примеры применения фильтров ФГГ-250
- Аэропорты Щёлково: Фильтрация авиакеросина перед заправкой самолетов.
- Металлургические комбинаты: Защита гидравлических систем от попадания металлической стружки.
- Речные порты: Очистка судового топлива от песка и ила.
Особенности фильтра для нефтепродуктов ФГГ-250
- Усиленный корпус: Изготовлен из низколегированной стали с антикоррозийным покрытием.
- Гибкая настройка: Тонкость фильтрации регулируется (4–25 мм) в зависимости от требований заказчика.
- Автоматизация: Опциональная установка датчиков перепада давления для интеграции в системы автоматизации.
Технические параметры фильтра для нефти ФГГ-250
| Обозначение | Фильтр ФГГ-250 |
| Производительность, м³/ч | 300 |
| Условное давление, Pу, МПа | 1,6; 2,5; 4,0; 6,3; 8,0 или 10,0 |
| Температура нефти, ℃ | От -15 до +80 |
| Температура нефтепродуктов, ℃ | От -20 до +80 |
| Степень фильтрации, мм | 4, 8, 12, 16 или 25 |
| DN, мм | 250 |
| Dp, мм (внутренний диаметр корпуса) | 500 |
| L, мм (расстояние от фланца корпуса до кромки осевого патрубка) | 2600 |
| L1, мм (расстояние от оси бокового патрубка) | 1400 |
| H, мм (расстояние от оси ФГГ до опоры) | 950 |
| L2, мм (расстояние между опорами) | 1100 |
| L3, мм (расстояние до опоры) | 1000 |
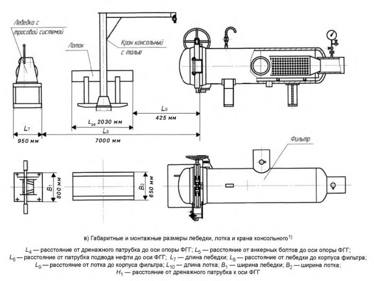
| Обозначение | Блочный фильтр ФГГ-250 |
| L7, мм (длина лебедки) | 950 |
| L8, мм (расстояние от лебедки до корпуса фильтра) | 7000 |
| L9, мм (расстояние от лотка до корпуса фильтра) | 425 |
| L10, мм (длина лотка) | 2030 |
| В2, мм (ширина лотка) | 650 |
| В1, мм (ширина лебедки) | 800 |
| L5, мм (расстояние от анкерных болтов до оси опоры ФГГ) | 0 |
| L6, мм (расстояние от патрубка подвода нефти до оси ФГГ) | 675 |
| L4, мм (расстояние от дренажного патрубка к оси опоры) | 600 |
| Н1, мм (расстояние от дренажного патрубка до оси ФГГ) | 420 |
| Радиус вылета быстроразъемного концевого затвора, мм | 950 |
| Количество штурвалов быстроразъемного концевого затвора, шт | 1 |
Чертеж фильтра ФГГ-250
Чертеж блочного фильтра ФГГ-250
Расшифровка условного обозначения
Например, фильтр грязеуловитель горизонтальный ФГГ номинальным диаметром DN 250 на номинальное давление PN 2,5 МПа, обычного исполнения (только фильтр), с осевым отводом нефти или нефтепродуктов, с правым расположением патрубка подвода нефти или нефтепродуктов, в сейсмостойком исполнении С по MSK — 64 [10], без теплоизоляции, вид климатического исполнения УХЛ1 по ГОСТ 15150 будет обозначаться следующим образом: ФГГ-250-2,5-Ф-0-П-С-УХЛ1.
Преимущества производителя нефтяных фильтров ООО "УЗСК"
- Производство сейсмостойких модификаций (до 9 баллов) для регионов с повышенной сейсмичной активностью.
- Разработка 3D-модели фильтра под параметры заказчика.
- Гарантия от года на корпус и фильтрующие элементы.
Заполните форму заказа






